V centre Prešova polyfunkčná budova na predaj
Ponúkame na predaj polyfunkčnú budovu v centre Prešova, ul. Massarykova, vo dvore bývalých pozemných stavieb stojacu na pozemku o výmere 132 m2.
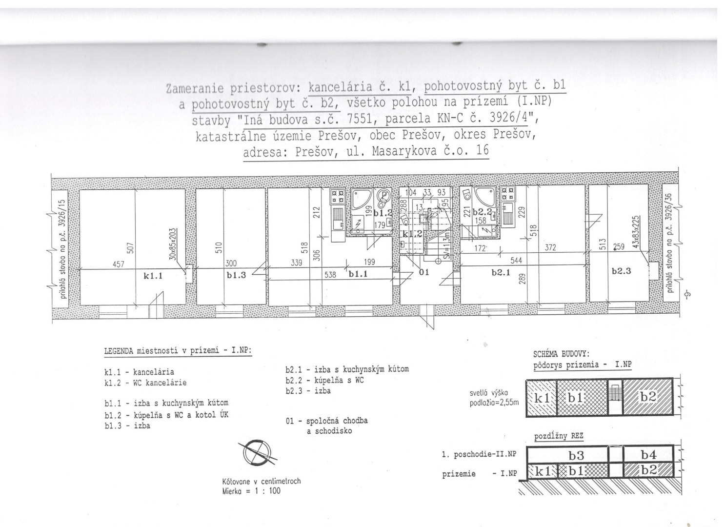
Ide o čiastočne rekonštruovanú, zateplenú dvojpodlažnú budovu o celkovej podlahovej ploche 224 m2.
Rekonštrukciou budovy boli vytvorené 4 bytové jednotky a kancelária. Presné výmery sú uvedené v priložených pôdorysoch.
Momentálne je všetko prenajaté s veľmi slušným mesačným ziskom.
V prípade záujmu, Vám bližšie informácie môžu poskytnúť priamo aj majitelia pri obhliadke nehnuteľností.
Požadovaná kúpna cena je znížená z 360.000,- na 340.000,-
Ide o čiastočne rekonštruovanú, zateplenú dvojpodlažnú budovu o celkovej podlahovej ploche 224 m2.
Rekonštrukciou budovy boli vytvorené 4 bytové jednotky a kancelária. Presné výmery sú uvedené v priložených pôdorysoch.
Momentálne je všetko prenajaté s veľmi slušným mesačným ziskom.
V prípade záujmu, Vám bližšie informácie môžu poskytnúť priamo aj majitelia pri obhliadke nehnuteľností.
Požadovaná kúpna cena je znížená z 360.000,- na 340.000,-
340 000 €
Prešov
Nedefinovaný
Nedefinovaný




Zdieľať

